HOSPITAL CLINICAL IRAQ

BAGHDAD – IRAQ

New plant

Área: 15.000 M2 – 161,458 SF

Areas of intervention

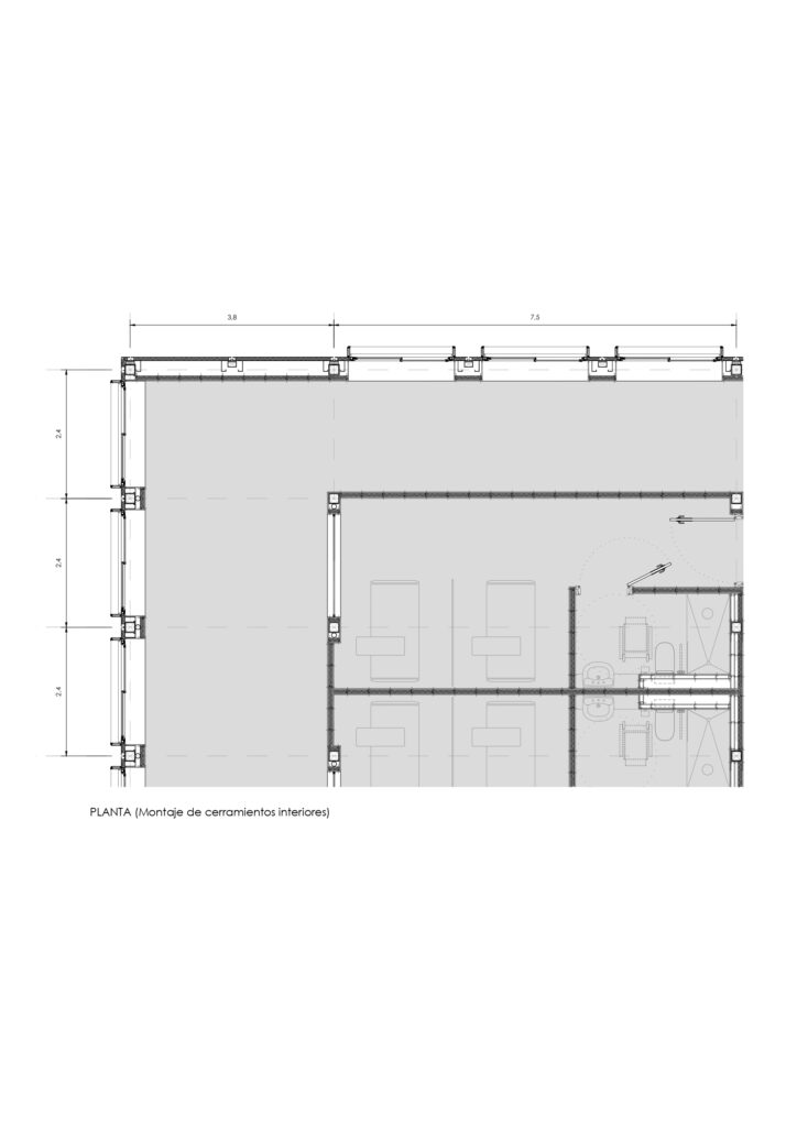
  • Constructive definition – Adaptation industrialized system of construction
  • Definition of engineering infrastructure support.

CASASIND Casas Industriales

en_USEnglish